Pronájem ubytovacího zařízení 626 m, ul. Přátelství, Praha 22 Uhříněves.
Nabízíme k pronájmu samostatnou dvoupatrovou budovu o celkové užitné ploše 626 m v Praze 22 Uhříněves, ulice Přátelství. Objekt je vhodný zejména jako ubytovna pro zaměstnance, sídlo společnosti, administrativní budova, coworkingové centrum nebo kombinace kancelářských prostor a ubytování. Díky své dispozici umožňuje ubytování a poskytuje dostatek prostoru pro provoz firmy i zázemí zaměstnanců.
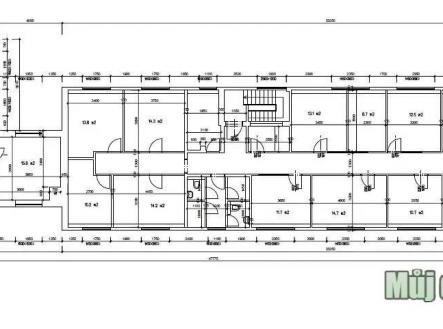
Budova disponuje celkem 26 pokoji a praktickým dispozičním řešením.
V přízemí se nachází 5 pokojů, kuchyň, 4 sprchy a 4 toalety. Součástí objektu je také sklepní část se 3 místnostmi, které lze využít jako skladové prostory, technické zázemí nebo další provozní místnosti. U objektu jsou k dispozici 3 venkovní parkovací místa.
V prvním patře se nachází další část budovy s 6 pokoji, kuchyní a sociálním zázemím, které tvoří 2 toalety se sprchou.
Z druhé strany budovy je samostatná část s vlastní dispozicí kuchyň, 15 pokojů, 4 toalety a 3 sprchy. Tato část umožňuje oddělený provoz, například pro jinou skupinu zaměstnanců, kanceláře nebo další ubytovací kapacitu.
Celková dispozice budovy umožňuje velmi flexibilní využití. Objekt lze rozdělit na několik provozních celků, kombinovat kanceláře s ubytováním zaměstnanců nebo vytvořit administrativní centrum společnosti s vlastním zázemím.
Nemovitost je ve smíšené konstrukci, v dobrém technickém stavu a připravena k okamžitému užívání. Objekt je pronajímán bez vybavení, nábytek a zařízení si nájemce zajišťuje dle vlastních potřeb. Energetická náročnost budovy je třídy G mimořádně nehospodárná.
Velkou výhodou je výborná dopravní dostupnost. Zastávka MHD se nachází přibližně 2 minuty chůze od budovy a zajišťuje rychlé spojení do centra Prahy i dalších městských částí. Lokalita nabízí kompletní občanskou vybavenost. V docházkové vzdálenosti se nachází supermarket Lidl, další obchody, restaurace, kavárny, služby i další komerční provozovny. V blízkosti jsou také zdravotnická zařízení, sportoviště, školy, pošta a další služby pro každodenní potřeby zaměstnanců či klientů.
Užitná plocha objektu činí 626 m. Budova je patrová a k dispozici ihned.
Měsíční nájemné: 175 280 Kč (cca 280 Kč/m)
Zálohy na služby: přibližně 20 000 Kč měsíčně
Vratná kauce: 175 000 Kč
Provize realitní kanceláři: 175 000 Kč + DPH
Kontakt
Realitní kancelář: Můj domov REALITY
Makléř: Lidiya Savynets
Viber / WhatsApp / Telegram: @LidiyaSyvynets
Pro více informací nebo sjednání osobní prohlídky mě neváhejte kontaktovat. Ráda vám tuto nemovitost osobně představím. Tento objekt může být stabilním a praktickým zázemím pro vaše podnikání v Praze.
- Zastavěná plocha:626 m2
- Užitná plocha:626 m2
- Plocha parcely:626 m2
- Počet podlaží v domě:2
- Druh objektu:smíšená
- Stav objektu:dobrý
- Typ zařízení:Penzion
- Umístění objektu:klidná část obce
- Topení:Ústřední - dálkové
