Pronájem obchodního prostoru 300 m, náměstí Dr. Václava Holého, Praha - Libeň.
Nabízíme k pronájmu atraktivní komerční prostory o celkové výměře 300 m v dynamicky se rozvíjející části Prahy 8 Libeň. Nemovitost se nachází přímo na náměstí Dr. Václava Holého, v přízemí dobře dostupného objektu s výbornou viditelností. Prostory jsou vhodné pro široké spektrum podnikatelských aktivit, od zdravotnických a poradenských služeb přes administrativu až po specializované provozovny či showroom.
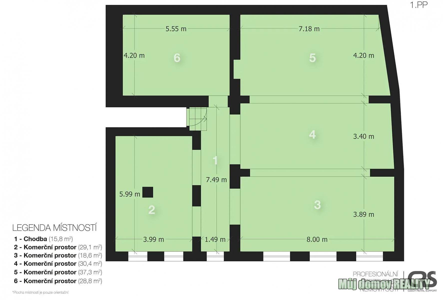
Objekt má dvě podlaží. V přízemí se nachází hlavní obchodní část s několika samostatnými místnostmi, čekárnou a sociálním zázemím. Suterén nabízí další plochu, kterou lze využít jako sklad, archiv, technické zázemí, dílnu nebo doplňkový provozní prostor. Tato kombinace výrazně rozšiřuje možnosti využití celé nemovitosti a přináší nájemci vysokou míru flexibility.
Budova byla více než 30 let úspěšně provozována jako veterinární klinika se stálou klientelou. Nový nájemce tak může navázat na zavedenou tradici zdravotnických služeb, případně prostory upravit dle vlastního podnikatelského záměru. Dispozice umožňuje snadné přizpůsobení konkrétním potřebám a provoz je možné zahájit bez zbytečných prodlev.
Lokalita nabízí výbornou dopravní dostupnost. Tramvajová zastávka se nachází přímo u objektu a stanice metra Palmovka je v docházkové vzdálenosti. V okolí je hustá rezidenční i komerční zástavba, což zajišťuje vysokou frekvenci pohybu lidí a potenciálních klientů. V blízkosti se nachází obchody, restaurace, služby i další občanská vybavenost.
Užitná plocha činí 300 m. Stavba je cihlová, v dobrém technickém stavu, patrového typu. Energetická náročnost budovy je třídy G mimořádně nehospodárná. Elektřina, voda a odpady se přepisují na nájemce. Prostor je k nastěhování ihned.
Měsíční nájemné činí 74 750 Kč. Zálohy na poplatky přibližně 10 000 Kč měsíčně. Vratná kauce 74 750 Kč. Provize realitní kanceláři 74 750 Kč + DPH.
Kontakt
Realitní kancelář: Můj domov REALITY
Makléř: Lidiya Savynets
Komunikační aplikace: Viber / Telegram: @LidiyaSyvynets, WhatsApp na tel.: čísle 770 677 459/
Pro více informací nebo sjednání osobní prohlídky mě neváhejte kontaktovat.
Tento prostor může být novým centrem vašeho podnikání v atraktivní části Prahy.
- Plocha:300 m2
- Druh objektu:smíšená
- Stav objektu:dobrý
- Druh prostor:Obchodní
- Umístění objektu:klidná část obce
- Topení:Ústřední - dálkové
