## Prodej rodinného domu 6+kk, 156 m, pozemek 127 m Hlubočepská, Praha Hlubočepy.
Nabízíme k prodeji **variabilní rodinný dům o užitné ploše 156 m**, situovaný v klidné části Praha 5 Hlubočepy. Nemovitost je ideální jak pro **vícegenerační bydlení**, tak jako **investiční příležitost**.
Celková cena: **15 490 000 Kč + provize RK**
### Dispozice a využití
Dům se skládá ze **3 jednotek**, přičemž předmětem prodeje jsou **2 jednotky (cca 79 % domu)**, které lze využívat samostatně nebo jako jeden celek:
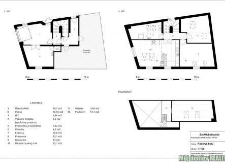
### Jednotka č. 1 byt 4+kk (cca 120 m)
Umístěna v 1. patře a podkroví:
* předsíň, schodiště, chodba
* obývací pokoj s kuchyňským koutem
* ložnice, pracovna
* koupelna s WC
* další ložnice v podkroví
### Jednotka č. 2 přízemí (36,21 m)
V KN vedena jako dílna/provozovna, aktuálně rekonstruována jako obytný prostor:
* zateplený prostor s vlastním vstupem z ulice nebo přes garážová vrata
* samostatná místnost s WC a umyvadlem (možný vlastní vstup z ulice)
Tato jednotka nabízí **výborný investiční potenciál** lze ji oddělit a pronajímat jako kancelář, obchod, provozovnu či sklad.
### Technické informace
* vytápění plynovým kotlem + krb
* radiátory
* veřejná kanalizace, vodovod, plyn
* elektřina 230 V
* dům po rekonstrukci, ve velmi dobrém stavu
* koupelna s vanou i sprchovým koutem
* vybavená kuchyňská linka a spotřebiče
* garáž + možnost parkování před domem
* bez SVJ
* bez právních vad
Energetická třída: **E nehospodárná**
### Lokalita and občanská vybavenost
Velkým benefitem je bezprostřední blízkost přírody pár minut chůze se nachází **Prokopské údolí**, Dalejský potok a Děvín, ideální pro procházky, sport i relax.
Zároveň máte v okolí kompletní občanskou vybavenost:
* mateřská i základní škola
* potraviny
* restaurace, pizzerie, kavárna
* wellness centrum
* další služby v docházkové vzdálenosti
### Dopravní dostupnost
* autobusová zastávka přímo u domu
* vlak cca 150 m
* tramvaj cca 1,5 km
* autem cca 5 minut na metro Smíchovské nádraží
Výborná dostupnost do centra města při zachování klidného rezidenčního charakteru lokality.
### Shrnutí
156 m užitné plochy
6+kk
možnost odděleného využití jednotek
garáž
investiční potenciál
blízkost přírody
kompletní občanská vybavenost
skvělá dopravní dostupnost
**Kontakt na sjednání prohlídky:**
Realitní kancelář: **Můj domov REALITY**
Makléř: **Lidiya Savynets**
Viber | WhatsApp | Telegram
*Těším se na Vaši zprávu nebo telefonát.*
- Poloha objektu:samostatný
- Druh objektu:cihlová
- Stav objektu:po rekonstrukci
- Počet podlaží v objektu:2
- Typ domu:patrový
- Zastavěná plocha:99 m2
- Užitná plocha:156 m2
- Plocha parcely:127 m2
- Umístění objektu:klidná část obce
- Topení:Ústřední - plynové
